IKR: INDUSTRIĀLI KOMFORTA RISINĀJUMI

Pakalpojumi

SIA „I.K.R.” veic jebkuras sarežģītības pakāpes apkures, ventilācijas un gaisa kondicionēšanas tehnisko projektu izstrādi un realizāciju.

Projektēšana

Projektēšana, kurā galvenās vadlīnijas ir klienta vēlmes, spēkā esošās būvniecības normas, augstākajie kvalitātes standarti un inovatīva pieeja ikvienam risinājumam, sniedz iespēju optimizēt un, līdz ar to, paātrināt būvniecības procesu, samazināt gan izbūves, gan ekspluatācijas izmaksas, turklāt iegūstot mūsdienu prasībām un Jums atbilstošu galaproduktu. Šādu rezultātu spējam sasniegt, jo mūsu apkures, ventilācijas un kondicionēšanas inženieriem ir liela pieredze izaicinošu projektu izstrādē un autoruzraudzībā. Speciālisti, iepazīstoties ar Jūsu būvniecības iecerēm, projektos ieintegrēs inovatīvus un ekonomiski pamatotus komforta risinājumus.

Izbūve

Veicot šo sistēmu izbūves darbus, uzskatām, ka galvenās komponentes izcilam rezultātam ir Jūsu vēlmes, atbilstība tehniskajam projektam, spēkā esošajiem normātīvajiem aktiem, standartiem un MK noteikumiem, kā arī augstākajiem kvalitātes standartiem. Mūsu speciālistu iesaistīšanāsizbūves darbu organizēšanā, veikšanā un kontrolēir strūrakmens Jūsu ieceres precīzā, kvalitatīvā, ekonosmiskā un savlaicīgā realizācijā.

Konsultācijas

Mūsu uzņēmuma komandas sastāvā ir sertificēti un pieredzējuši nozares speciālisti, kas labprāt sniegs Jums profesionālas konsultācijas ar apkuri, ventilācija un gaisa kondicionēšanu saistītos jautājumos. Sazinieties ar mums un mēs labprāt palīdzēsim atrast inovatīvus, ekonomiskus, kā arī racionālus risinājumus Jūsu ieceru realizācijai!

Serviss

SIA „I.K.R.” veic kvalitatīvu, ekonomiski pamatotu un operatīvu apkures, ventilācijas un gaisa kondicionēšanas sistēmu apkalpošanu. Mēs nodrošinām gan garantijas, gan arī pēcgarantijas AVK inženiersistēmu apkalpošanu, par to iepriekš vienojoties. Savlaicīgi veicot plānveida apkopes, Jūs paildzināsiet inženiersistēmu ilgmūžību, turklāt to enegroefektivitāte saglabāsies līdzšinējā līmenī. Šādu rezultātu Jums palīdzēs sasniegt SIA „I.K.R.” apkopes darbu speciālisti, kuriem ir ilgadēja pieredze un inovatīva pieeja šādu situāciju risināšanai.

Specializējamies

KONDICIONĒŠANA

Izmantojot kondicionēšanas sistēmas telpās, atbilstoši to funkcijām un Jūsu vēlmēm, tiek uzturēts nepieciešmais mikroklimats, neatkarīgi no mainīgajiem iekštelpu vai apkārtējās vides mikroklimatu ietekmējošiem ārējiem faktoriem.

Specializējamies

APKURE

Izmantojot kondicionēšanas sistēmas telpās, atbilstoši to funkcijām un Jūsu vēlmēm, tiek uzturēts nepieciešmais mikroklimats, neatkarīgi no mainīgajiem iekštelpu vai apkārtējās vides mikroklimatu ietekmējošiem ārējiem faktoriem.

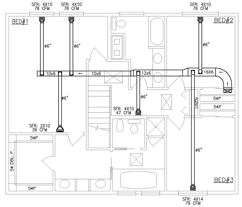
Specializējamies

VENTILĀCIJA

Izmantojot kondicionēšanas sistēmas telpās, atbilstoši to funkcijām un Jūsu vēlmēm, tiek uzturēts nepieciešmais mikroklimats, neatkarīgi no mainīgajiem iekštelpu vai apkārtējās vides mikroklimatu ietekmējošiem ārējiem faktoriem.